This studio, taken in the spring of my second year, focused on creating a center for the performing arts in the urban context of downtown Portland, Oregon. On a site set between existing businesses, main streets, and park blocks, responding to the urban context while dealing with a complex program was a main focus of this studio. The program itself was the biggest challenge for me, as there were very specific perimeters for the size of theaters and studios which all had to fit into a strictly limited space while meshing with our first required structural systems and emergency egress pathways.
Title and Diagrams

An axonometric view shows my design in the urban context, and diagrams show major concepts of my design

Ink and graphite
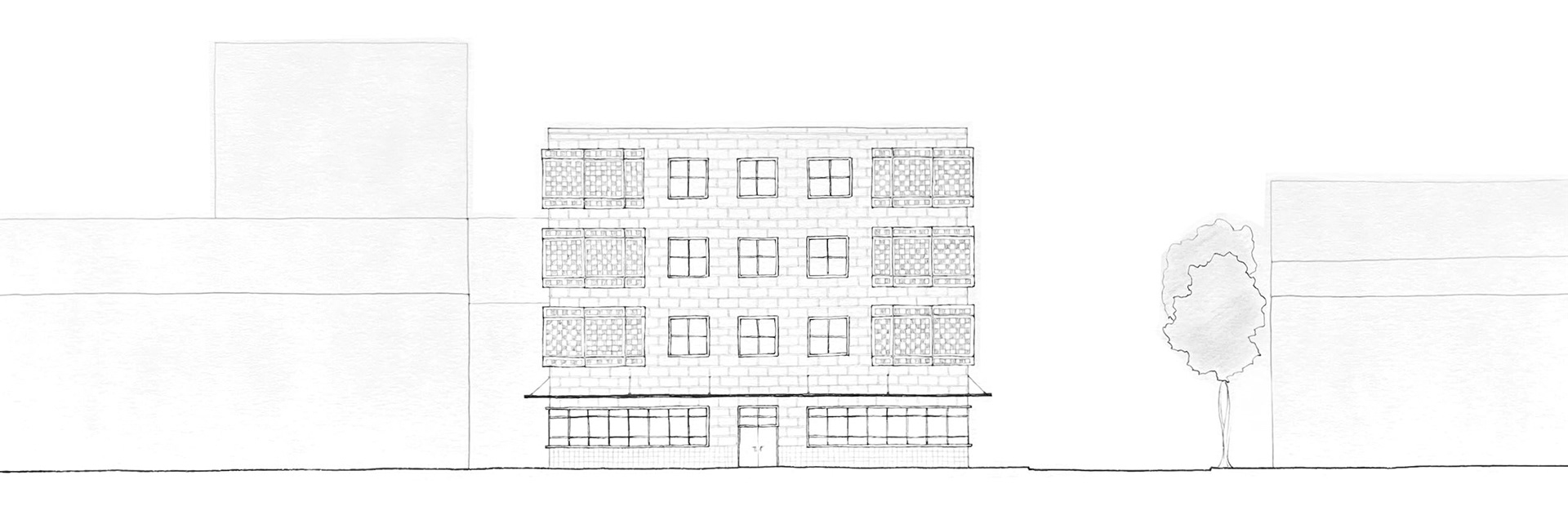
Exterior Perspective

Ink and graphite
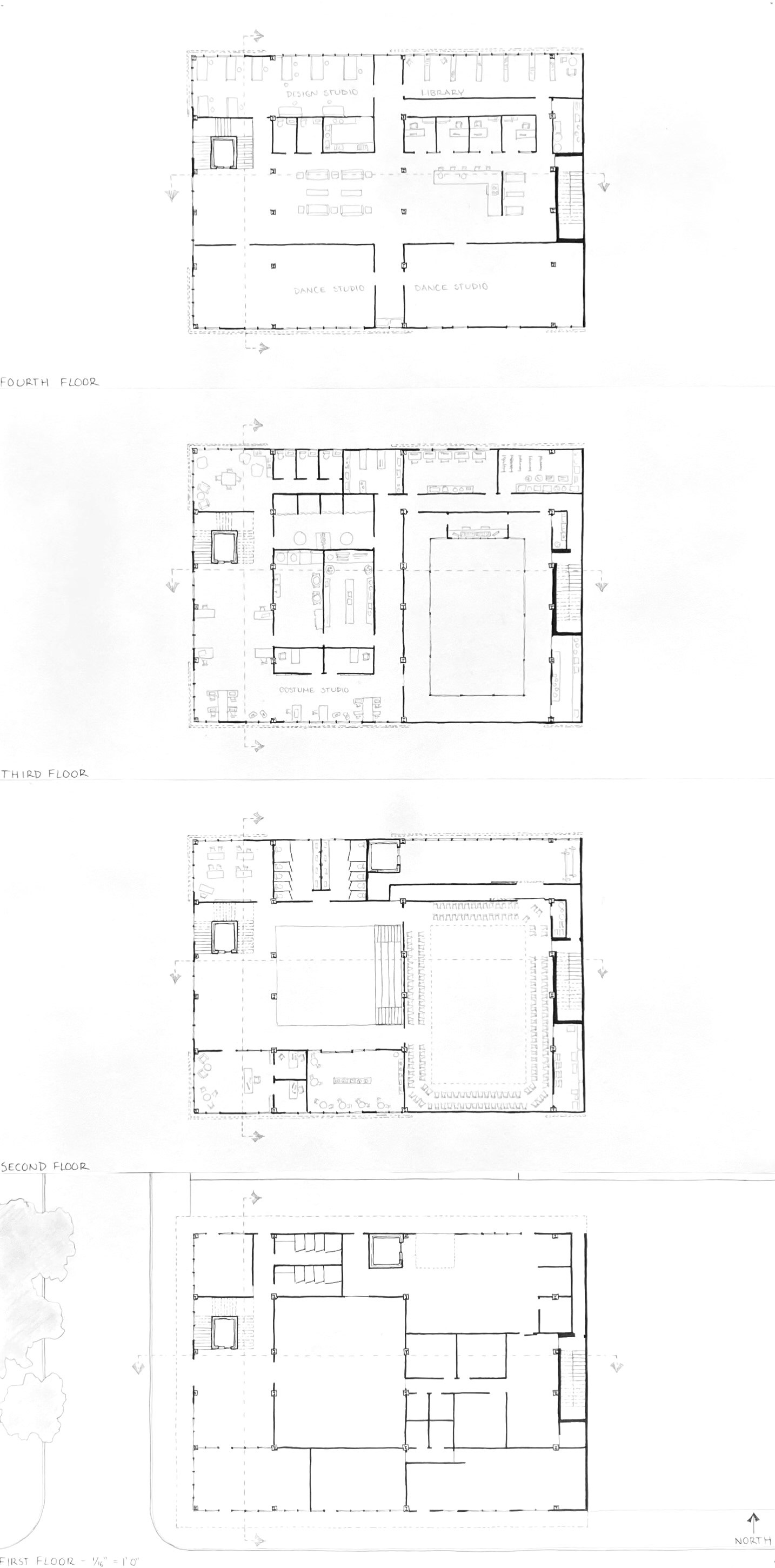
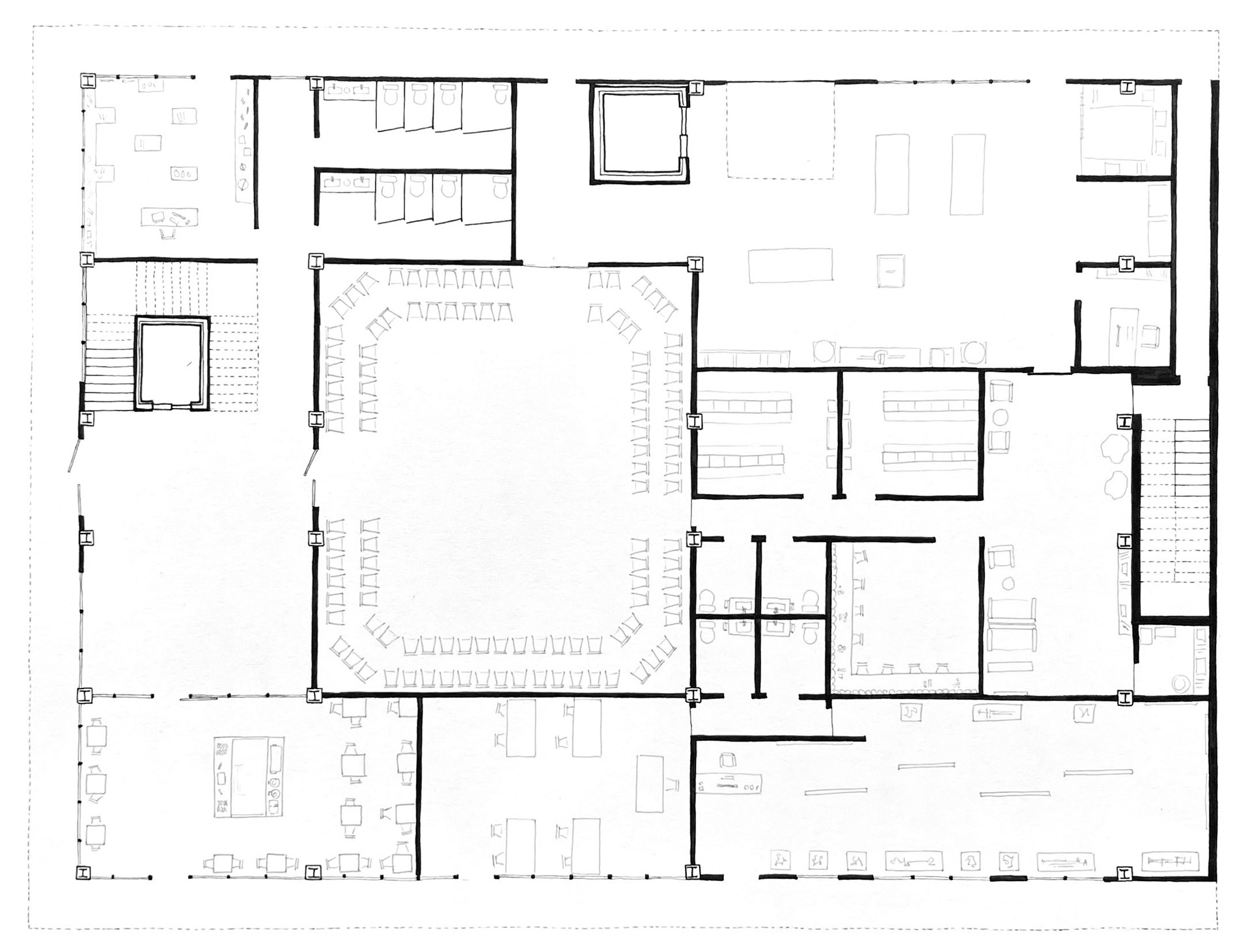
Floor Plans

All four floors on left, double scale first floor on right

Ink
Sections

Cross section and left, longitudinal on right shows park blocks

Ink and graphite
Elevations

Ink and graphite
Interior Perspective and Model Photo of Dance Studio

Ink and graphite; various
Structure Armature

Structural grid with section cut through black and white box theaters

Cardboard, balsawood, construction paper
Facade Model

Museum board, foam core, paper, acrylic
Progress Work